Eastside ADU

LOCATION

Madison, Wisconsin

SERVICES

Architecture and Construction

ABOUT THE BUILD

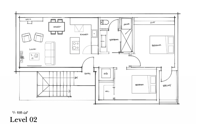
With the advent of new accessory dwelling unit provisions in the city’s ordinance, we are designing and building a new backyard ADU for this eastside couple. The adoption of ordinances that permit more ADUs will help the city add more homes, which will offer more housing options to residents of our growing community. We are excited to offer this service to our clients as this is a meaningful step to increase housing options, increase tax base, and allow our community to grow incrementally over time.  

Previous
Previous

Undisclosed